Page suivante
Page précédente
Strasbourg (67100)

Appartement 3 pièce(s) 2 chambre(s) 84.87 m²

1
Balcon
Ascenseur
299 500 €
Réf 171

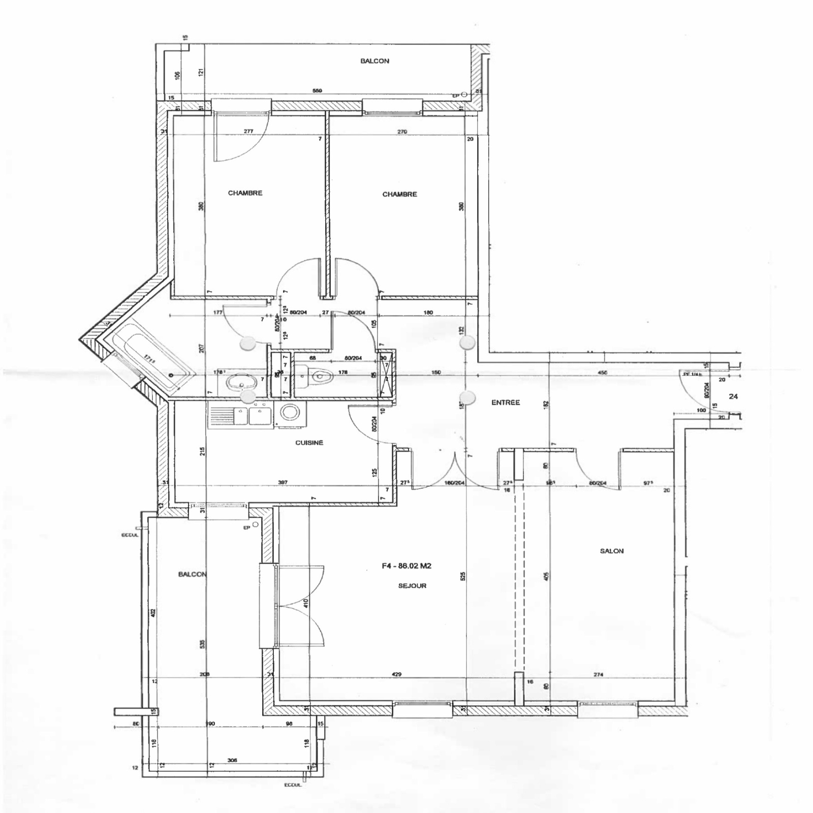
EXCLUSIVITE ! A vendre à Strasbourg Neudorf, Chemin Fried, dans un quartier recherché, calme et à proximité immédiate du tram et des transports en commun, appartement 3/4 pièces de 84,87 m² situé au 2ème étage avec ascenseur d’une résidence récente et très bien entretenue (1999).

L’appartement se compose d’une entrée avec grand placard, ouvrant sur un vaste salon/séjour très lumineux, avec accès direct à un premier balcon de 12 m², idéal pour profiter des beaux jours.
La cuisine séparée, entièrement équipée, est fonctionnelle et agréable au quotidien.
L’espace nuit comprend deux chambres, dont une avec accès à un second balcon, une salle de bains ainsi que des WC indépendants. La configuration permet facilement l’aménagement d’une troisième chambre, selon les besoins.

Le chauffage et l’eau chaude sont collectifs au gaz.
La résidence de standing comprend 22 lots principaux d’habitation.
L’appartement est en très bon état général et particulièrement lumineux.
Charges de copropriété : 300 € / mois, incluant notamment :

chauffage
eau chaude
ascenseur
entretien des espaces verts
entretien des parties communes

Bonne nouvelle pour les futurs acquéreurs ! Le ravalement de façade, voté lors de l’assemblée générale de décembre 2025, sera intégralement pris en charge par les vendeurs, permettant de bénéficier d’une copropriété valorisée sans travaux majeurs à prévoir à court terme.

Possibilité d’acquérir en supplément un garage fermé au sein de la résidence.

Bilan énergétique

Diagnostics énergetiques
A propos de ce bien Caractéristiques de ce bien
  • Surface 84,87 m²
  • carrez 84,87 m²
  • 2 chambre(s)
  • 1 salle(s) de bain
  • construit en 1999
  • cuisine séparée (équipée)
  • Chauffage collectif : chaudière (gaz)
  • 2ème étage
  • ascenseur
  • vue Rue
  • balcon

Info copro

Copropriété
  • Copropriété Oui
  • Lot n° 6
  • Nombre de lots 22
  • Quote part annuelle des charges 3 000 €
  • Statut du syndic Pas de procédure en cours

Financier

Informations financières
Prix de vente honoraires TTC inclus 299 500 €
Prix net vendeur 289 300 €
Prix de vente honoraires TTC exclus 289 300 €
Honoraires TTC à la charge acquéreur 3,53 %
Charges 300 €
Taxe foncière annuelle 1 412 €

Autour du bien

Découvrez le quartier

Simulation

Calcul des mensualités
* Champs obligatoires